
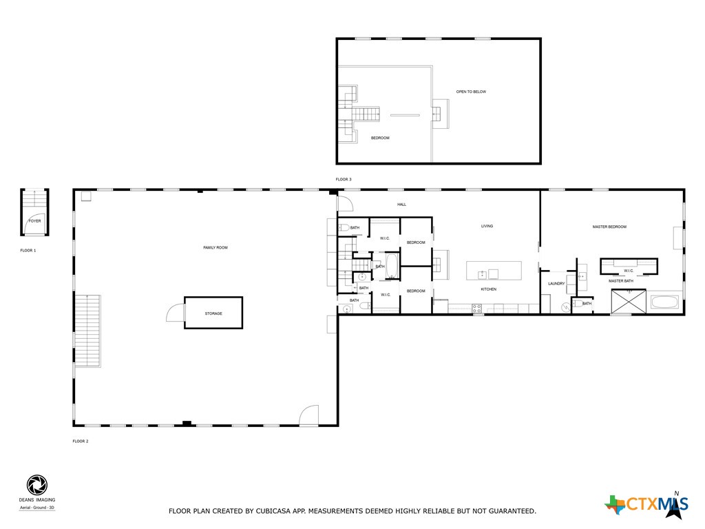
This one-of-a-kind mixed-use building in the heart of downtown Moulton has been standing strong for over 100 years, offering endless possibilities for investors and entrepreneurs alike. With a blend of commercial and residential spaces, this property is full of character, modern updates, and income potential. Main Street Commercial Space: Major renovations initiated on approx. 1875 sq. ft. of office/classroom space featuring cedar shiplap walls, original tin ceilings, and a dedicated entrance from Main Streetperfect for retail, office, or creative use Former Restaurant Space: Approx. 1500 sq ft of commercial space, formerly a Mexican restaurant, awaiting a visionary owner to bring it back to life. Modern 2 Bed/2 Bath Apartment: A beautifully finished, potential income-producing residential unit with distinctive features, offering comfortable downtown living. Expansive Entertainment & Residential Space: Upstairs boasts approx. 2,750 sq. ft. of open entertainment space with refinished hardwood floors, original tin ceilings, and bookshelves with hidden doors, leading into a spacious 1,875 sq. ft. residential area. This area features 3 bedrooms, 2-1/2 bathrooms, a loft, and modern custom finishesall while preserving the building’s original charm. With its rich history, unique layout, income potential, and prime location, this property is an excellent opportunity for an investor or business owner looking to make their mark in downtown Moulton. Don't miss your chance to own a piece of historycall today to explore the possibilities!
| MLS # | 573632 |
|---|---|
| Listing Type | For Sale |
| Style | House |
| Sub-Type | Resale |
| Status | Active |
| Year | 1900 |
| Days On Site | 227 |
| Listing Provided By | Legacy Land Associates | Jodie Ann Siptak |
| Bed(s) | 5 |
|---|---|
| Bath(s) | 9 Total |
| SQ Feet | 9,250 |
| Story(s) | 2 |
| Acreage | 0.11 |
| Property View | None |
| State | TX |
|---|---|
| County | Lavaca |
| City | Moulton |
| Zip Code | 77975 |
| School District | Moulton ISD |
| Elementary School | Moulton ISD |
| High School | Moulton ISD |
| State | TX |
|---|---|
| County | Lavaca |
| City | Moulton |
| Zip Code | 77975 |
| School District | Moulton ISD |
| Elementary School | Moulton ISD |
| High School | Moulton ISD |
![]() | $499,000103 N MainMoulton, TX 77975 |